SOLD
±26,460 SF Two-Story Office/Warehouse with Yard Available Now in Airport - Las Vegas Submarket
±26,460 SF Two-Story Office/Warehouse with Yard Available Now in Airport - Las Vegas Submarket
±26,460 SF Two-Story Office/Warehouse with Yard Available Now in Airport - Las Vegas Submarket
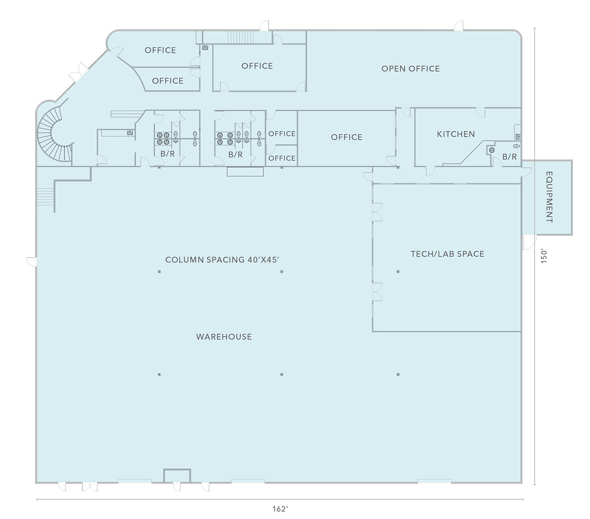
This single tenant ±26,460 SF industrial building is located within the Spencer Airport Center in the Airport submarket.
The property offers 25’ clear height, Secured yard area, and a substantial office component, making it well suited for both owner users and investors seeking a centrally located industrial asset near Harry Reid International Airport and the Brightline West Station now under Construction.
Constructed in 2000, the building is comprised of approximately 66% warehouse and 34% office space, featuring three 10’ x 12’ grade level doors, 25’ clear height, 2,000 Amps of 3 phase power, and durable reinforced concrete construction. The site is zoned Industrial Park (IP) and is located within an Opportunity Zone, providing additional long term investment advantages.
| ADDRESS | 2015 East Helm Dr, Las Vegas, NV 89119 |
| SUBMARKET | Airport Sub-Market |
| BUILDING SIZE | ±26,460 SF |
| LAND AREA | ±1.31 Acres |
| TENANCY | Single-Tenant |
| CONSTRUCTION | Reinforced Concrete |
| CLEAR HEIGHT | 25’ |
| POWER | 2,000 Amps 120/208 3-Phase Power Service |
| STORIES | 2 |
| FREE STANDING | Yes |
| GRADE-LEVEL DOORS | 3 (12’x12’) |
| APN NUMBER | 177-02-612-003 |
| YEAR BUILT | 2000 |
| SECURED YARD | 20’ x 125’ (2,500 SF) |
| PARKING | 48 Spaces |
| BUILDING COMPOSITION | 66% Warehouse, 34% Office |
| ZONING | Industrial Park (IP) - Opportunity Zone |
| CROSS STREETS | E Sunset Rd & S Surrey St |
| SEVEN MINUTES FROM | Harry Reid Intl. Airport |
| 12 MINUTES (4.5 MILES) | To Brightline West Las Vegas Station |
FUTURE OF VEGAS DEVELOPMENT
This prime industrial property is within close proximity to future Brightline West Las Vegas Station generally located at Address: 1100 W Robindale Rd, Las Vegas, NV 89123
Zoned for industrial park (IP) Opportunity Zone. Located at E Sunset Road & S Surrey Street, it’s just 7 minutes from the Harry Reid Intl. Airport and 12 minutes (4.5 mi) to Brightline West Las Vegas Station.